Style 2B #1-501

Starting at $4,496
991 Sq. Ft. | 2 Bed | 2 Bath
Available Now
Style 2B

Features

  • Living Areas

    • Wood Plank Flooring
    • Built-in Desk
  • Kitchen and Bath

    • Breakfast Bar
    • Modern Kitchen
    • Glass Backsplash
    • Dishwasher
    • Microwave
  • Home Attributes

    • Smart Home Door Lock
    • Smart Home Thermostat
    • Dryer
    • Washer
  • Premium Features

    • Walk-in Closets
  • 2D Diagram
  • 2D Diagram Furnished
  • 3D Tour
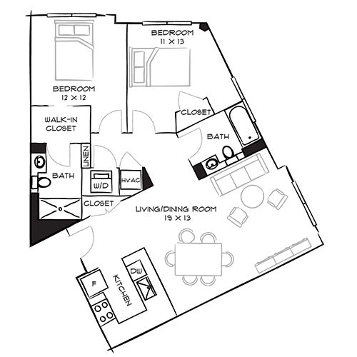
2D Diagram

Style 2B

This two-bedroom, two-bathroom floor plan features an open concept design with a spacious central living area.

2D Diagram Furnished

Style 2B

This two-bedroom, two-bathroom floor plan features an open concept design with a spacious central living area.

Style 2B

This two-bedroom, two-bathroom floor plan features an open concept design with a spacious central living area.

*Apartment prices, availability and terms are subject to change without notice. Apartment photos and floor plans are for illustrative purposes only. Actual square footage, layout, and property or apartment features may vary.