Schedule A Tour
Apply Now
Home
Residences
Community Features
Gallery
Location
FREQUENTLY ASKED QUESTIONS
BACK TO RESIDENCES
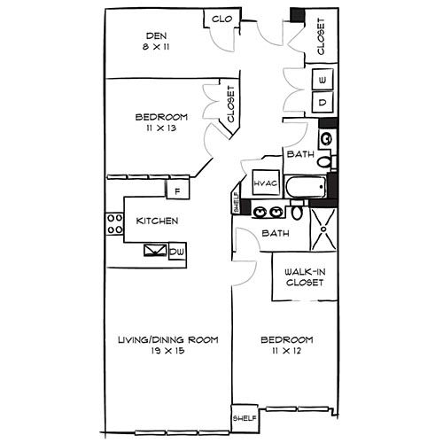
Style 2J with Den
Diagram
Photo
3D Tour
Diagram
Diagram
Photo
3D Tour
Available Units